Bilocale in vendita

Porto Mantovano, Via Gramsci
€ 90.000
2 locali 2 locali
75 Mq 75 Mq
1 bagno 1 bagno

Bilocale in vendita

Porto Mantovano, Via Gramsci

Descrizione annuncio

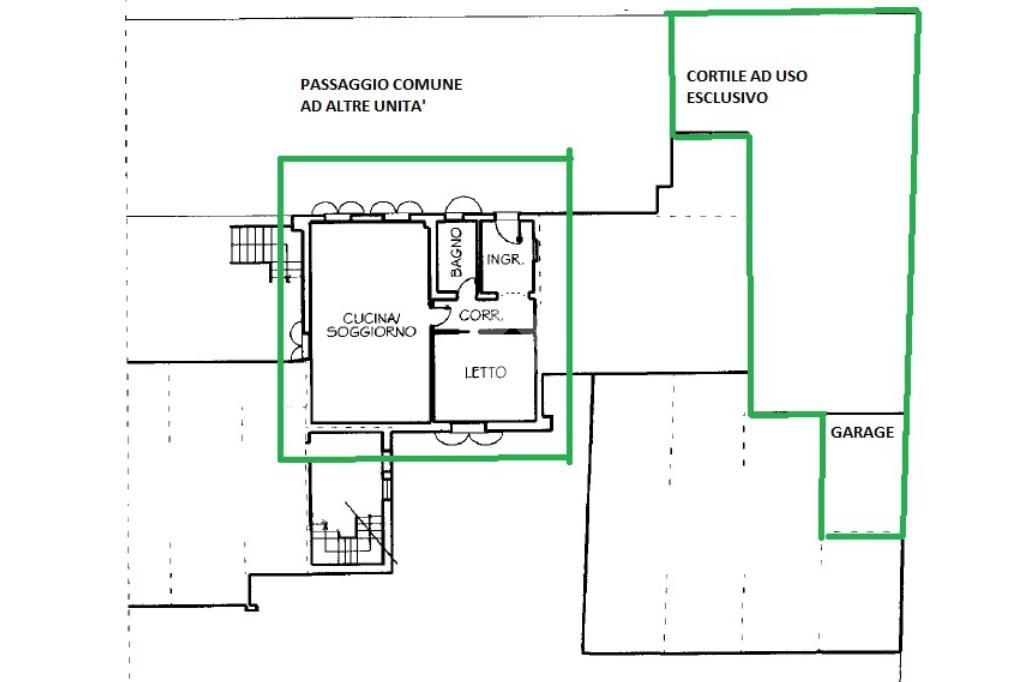
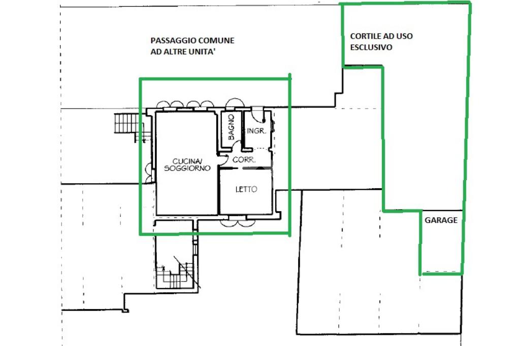
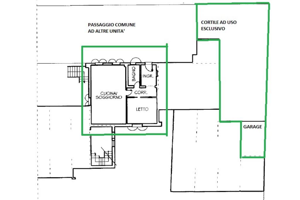
PORTO MANTOVANO - Ampio bilocale al piano terra con garage e cortile privato.

Internamente l'appartamento è composto da ingresso (dove sono presenti armadi a muro su entrambi i lati), ampio soggiorno con cucina a vista e ripostiglio creato da una parete in cartongesso, bagno con doccia e camera da letto matrimoniale. A pochi metri dalla casa troviamo il garage ed il cortile privato.

L'appartamento si presenta in buono stato e non necessita di lavori poichè la caldaia è stata sostituita 5 anni fa' ed il bagno è stato rifatto recentemente.

Mostra tutto

Nelle vicinanze

Trasporto pubblico Trasporto pubblico
Sant’Antonio Mantovano
Sant’Antonio Mantovano
710 m
Monteverdi 2
Monteverdi 2
190 m
Gramsci
Gramsci
210 m
Ricariche auto elettriche Ricariche auto elettriche
Evway Porto Mantovano Resistenza
900 m
Scuole Scuole
Scuole Medie Monteverdi
170 m
Scuole
210 m
Farmacia Farmacia
Gamba
100 m
Farmacia
990 m
Farmacia San Raffaele
2,2 Km
Supermercati Supermercati
Conad
180 m
Albero
510 m
Lidl
1,1 Km
Famila
2,0 Km
Martinelli
2,5 Km
Bar Bar
Bar Camatti
450 m
Mascara
2,0 Km
Ristoranti Ristoranti
Sakura
380 m
Ristorante Fuku
560 m
Piedigrotta
680 m
La Rasdora
1,3 Km
Ristoranti
1,5 Km
Mostra tutto

Caratteristiche

Rif.:
61167724
Piano:
Terra di 2
Totale piani:
2
Box:
1
Posti auto:
1
Camere da letto:
1
Mostra tutto
Prezzo Prezzo
€ 90.000
Rata mutuo Rata mutuo
€ 424 / mese
Spese annue Spese annue
€ 0
Proponi il tuo prezzoProponi il tuo prezzo
Immobile valutato con T·Valuta

Classe Energetica

F
F
F
F
F
F
F
F
F
EP globale non rinnovabile:
235.17 kW h/m² anno
EP invernale del fabbricato:
EP estiva del fabbricato:
Anno di costruzione:
1992
Riscaldamento:
Autonomo
Tipo impianto:
A radiatori
Tipo alimentazione:
Metano

Ti interessa visionare l'immobile?

Fissa un appuntamento  Fissa un appuntamento

Richiedi informazioni

Clicca su Leggi per aprire l'informativa
* Questi campi sono obbligatori

Calcola il tuo mutuo

Semplice e senza impegno
Anticipo

( % )
Mutuo

( % )

pochi semplici passi

inserisci i tuoi dati
Questionario completato
Grazie per aver richiesto un appuntamento senza impegno con un nostro Consulente del Credito e Assicurativo.

Hai inserito correttamente tutti i dati necessari e a breve riceverai una e-mail con un link da convalidare per inviare i tuoi dati.
Affiliato
Tecno Marmirolo Srl
Via Gramsci, 1/L 46047 Porto Mantovano (MN)

Il nostro staff


  • Oscar Zini
    Affiliato

  • Tania Caccia
    Coordinatrice

  • Giada Martignoni
    Collaboratrice

  • Francesco Tolucci
    Collaboratore

  • Nicole Zorzella
    Collaboratrice
Via Gramsci, 1/L 46047 Porto Mantovano (MN)
Zona: Porto Mantovano
Mostra su mappa
Orari: LUNEDI' - VENERDI' dalle 09.00 alle 13.00 e dalle 14.30 alle 19.30; SABATO dalle 09.00 alle 15.00. DOMENICA su appuntamento.
Affiliato
Tecno Marmirolo Srl
Via Gramsci, 1/L 46047 Porto Mantovano (MN)

2026 Tecnocasa Franchising S.p.A. - P. IVA 08365160152 - Via Monte Bianco 60/A 20089 Rozzano (MI). Ogni agenzia ha un proprio titolare ed è autonoma. Privacy policy | Policy utilizzo | Cookie policy