Bilocale in vendita

Porto Mantovano, via Gramsci
€ 85.000
Prezzo aggiornato
2 locali 2 locali
60 Mq 60 Mq
1 bagno 1 bagno

Bilocale in vendita

Porto Mantovano, via Gramsci

Descrizione annuncio

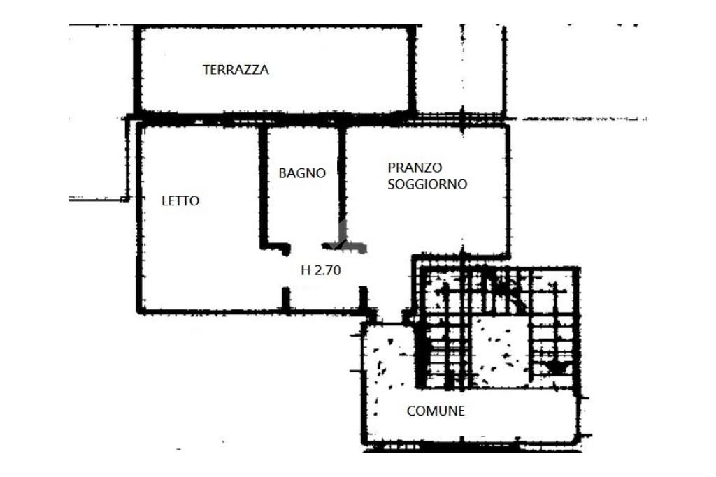
PORTO MANTOVANO - Proponiamo in vendita luminoso bilocale, in classe energetica C, situato in zona piscine.

L'immobile, costruito nel 1996, offre un ambiente accogliente e funzionale.

La zona giorno si apre su un luminoso soggiorno e cucina in open space, con accesso diretto all'ampio balcone, ideale per momenti di relax all'aperto.

La zona notte comprende una camera da letto spaziosa e un bagno ben rifinito.

Completa la proprietà un ampio box auto, offrendo comodità e sicurezza per il parcheggio.

L'appartamento è dotato di aria condizionata, assicurando un clima piacevole in ogni stagione.

Questa soluzione abitativa rappresenta un'opportunità interessante per chi cerca un'abitazione in una zona tranquilla, ma ben collegata ai principali servizi e vie di comunicazione.

Si rende noto che nel 2022 è stata sostituita la caldaia con una a condensazione.

Ideale come investimento!

Per ricevere informazioni e per visionare questa soluzione, contattaci ai nostri recapiti telefonici:
0376 390732 – 366 8700548

Servizi per chi vende:
- VALUTAZIONE GRATUITA dell'immobile
- Recuperare atto di provenienza
- Visure ipotecarie
- Visura catastale
- Pubblicità dell'immobile
- Rapidità nei tempi di vendita
- Assistenza fino all’atto notarile
- Appuntamenti vendita con clienti qualificati

Servizi per chi acquista:
- Consulenza mutuo gratuita e senza impegno
- Controllo documentale dell'immobile
- Assistenza fino all’atto

Vuoi affittare il tuo immobile? Ampia banca dati con clienti referenziati.

Veniteci a trovare in agenzia, siamo a Porto Mantovano (MN) in Via Antonio Gramsci 1/L, ed il nostro personale vi aiuterà a trovare l'immobile giusto per le vostre esigenze.

Ogni agenzia ha un proprio titolare ed è autonoma - Le presenti informazioni non costituiscono elemento contrattuale e potrebbero, in buona fede, contenere errori o omissioni.

Mostra tutto

Nelle vicinanze

Trasporto pubblico Trasporto pubblico
Sant’Antonio Mantovano
Sant’Antonio Mantovano
710 m
Monteverdi 2
Monteverdi 2
190 m
Gramsci
Gramsci
210 m
Ricariche auto elettriche Ricariche auto elettriche
Evway Porto Mantovano Resistenza
900 m
Scuole Scuole
Scuole Medie Monteverdi
170 m
Scuole
210 m
Farmacia Farmacia
Gamba
100 m
Farmacia
990 m
Farmacia San Raffaele
2,2 Km
Supermercati Supermercati
Conad
180 m
Albero
510 m
Lidl
1,1 Km
Famila
2,0 Km
Martinelli
2,5 Km
Bar Bar
Bar Camatti
450 m
Mascara
2,0 Km
Ristoranti Ristoranti
Sakura
380 m
Ristorante Fuku
560 m
Piedigrotta
680 m
La Rasdora
1,3 Km
Ristoranti
1,5 Km
Mostra tutto

Caratteristiche

Rif.:
61170103
Piano:
1 di 3 (Piano medio)
Box:
1
Balconi:
1
Camere da letto:
1
Arredamento:
Completo
Mostra tutto
Prezzo Prezzo
€ 85.000
Rata mutuo Rata mutuo
€ 403 / mese
Spese annue Spese annue
€ 400
Proponi il tuo prezzoProponi il tuo prezzo
Immobile valutato con T·Valuta

Classe Energetica

C
C
C
C
C
C
C
C
C
EP globale non rinnovabile:
93.89 kW h/m² anno
EP globale rinnovabile:
2.05 kW h/m² anno
EP invernale del fabbricato:
EP estiva del fabbricato:
Anno di costruzione:
1996
Riscaldamento:
Autonomo
Tipo impianto:
A radiatori
Tipo alimentazione:
Metano

Prezzo ridotto di €1 (11%%)

Ti interessa visionare l'immobile?

Fissa un appuntamento  Fissa un appuntamento

Richiedi informazioni

Clicca su Leggi per aprire l'informativa
* Questi campi sono obbligatori

Calcola il tuo mutuo

Semplice e senza impegno
Anticipo

( % )
Mutuo

( % )

pochi semplici passi

inserisci i tuoi dati
Questionario completato
Grazie per aver richiesto un appuntamento senza impegno con un nostro Consulente del Credito e Assicurativo.

Hai inserito correttamente tutti i dati necessari e a breve riceverai una e-mail con un link da convalidare per inviare i tuoi dati.
Affiliato
Tecno Marmirolo Srl
Via Gramsci, 1/L 46047 Porto Mantovano (MN)

Il nostro staff


  • Oscar Zini
    Affiliato

  • Tania Caccia
    Coordinatrice

  • Giada Martignoni
    Collaboratrice

  • Francesco Tolucci
    Collaboratore

  • Nicole Zorzella
    Collaboratrice
Via Gramsci, 1/L 46047 Porto Mantovano (MN)
Zona: Porto Mantovano
Mostra su mappa
Orari: LUNEDI' - VENERDI' dalle 09.00 alle 13.00 e dalle 14.30 alle 19.30; SABATO dalle 09.00 alle 15.00. DOMENICA su appuntamento.
Affiliato
Tecno Marmirolo Srl
Via Gramsci, 1/L 46047 Porto Mantovano (MN)

2026 Tecnocasa Franchising S.p.A. - P. IVA 08365160152 - Via Monte Bianco 60/A 20089 Rozzano (MI). Ogni agenzia ha un proprio titolare ed è autonoma. Privacy policy | Policy utilizzo | Cookie policy