Villa singola in vendita

Porto Mantovano, via Gramsci
€ 150.000
4 locali 4 locali
115 Mq 115 Mq
2 bagni 2 bagni

Villa singola in vendita

Porto Mantovano, via Gramsci

Descrizione annuncio

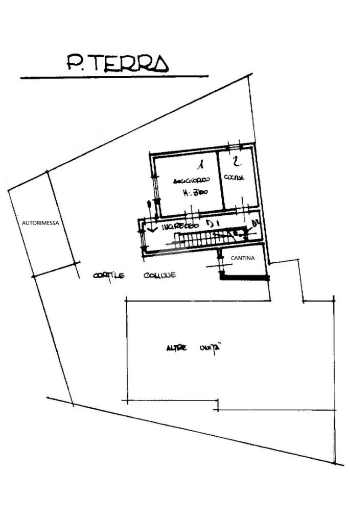
PORTO MANTOVANO - Proponiamo in vendita una villetta indipendente, ideale per chi cerca una soluzione abitativa su più livelli. Costruita nel 1975 e completamente ristrutturata internamente nel 2011, questa proprietà offre spazi ben distribuiti e funzionali.

Al piano terra, l'ingresso conduce ad un luminoso soggiorno, perfetto per momenti di relax e convivialità, con angolo cottura separato che garantisce praticità e comfort per la vita quotidiana.

Al piano superiore, si trovano le due camere da letto e lo studiolo, che offrono tranquillità e privacy. La disposizione su più livelli permette di sfruttare al meglio ogni ambiente, adattandosi alle diverse esigenze familiari.

Entrambi i livelli sono serviti da bagno ristrutturato con doccia.

La villa è circondata da un contesto residenziale tranquillo, con servizi e comodità facilmente raggiungibili.

Completano l'immobile la cantina ed il garage di pertinenza.

Si rende noto che i lavori di ristrutturazione effettuati nel 2011 comprendono la sostituzione di serramenti e zanzariere, il rifacimento dell'impianto elettrico e degli impianti idraulici e la sostituzione dei rivestimenti.

Una soluzione abitativa che coniuga spazio e funzionalità, in una posizione strategica per chi desidera vivere a Porto Mantovano.

Mostra tutto

Nelle vicinanze

Trasporto pubblico Trasporto pubblico
Sant’Antonio Mantovano
Sant’Antonio Mantovano
710 m
Monteverdi 2
Monteverdi 2
190 m
Gramsci
Gramsci
210 m
Ricariche auto elettriche Ricariche auto elettriche
Evway Porto Mantovano Resistenza
900 m
Scuole Scuole
Scuole Medie Monteverdi
170 m
Scuole
210 m
Farmacia Farmacia
Gamba
100 m
Farmacia
990 m
Farmacia San Raffaele
2,2 Km
Supermercati Supermercati
Conad
180 m
Albero
510 m
Lidl
1,1 Km
Famila
2,0 Km
Martinelli
2,5 Km
Bar Bar
Bar Camatti
450 m
Mascara
2,0 Km
Ristoranti Ristoranti
Sakura
380 m
Ristorante Fuku
560 m
Piedigrotta
680 m
La Rasdora
1,3 Km
Ristoranti
1,5 Km
Mostra tutto

Caratteristiche

Rif.:
61118227
Piano:
Su più livelli di 2
Totale piani:
2
Box:
1
Camere da letto:
3
Arredamento:
Parziale
Mostra tutto
Prezzo Prezzo
€ 150.000
Rata mutuo Rata mutuo
€ 707 / mese
Spese annue Spese annue
€ 0
Proponi il tuo prezzoProponi il tuo prezzo

Classe Energetica

F
F
F
F
F
F
F
F
F
EP globale non rinnovabile:
277.70 kW h/m² anno
EP globale rinnovabile:
7.77 kW h/m² anno
EP invernale del fabbricato:
EP estiva del fabbricato:
Anno di costruzione:
1975
Riscaldamento:
Autonomo
Tipo impianto:
A radiatori
Tipo alimentazione:
Metano

Ti interessa visionare l'immobile?

Fissa un appuntamento  Fissa un appuntamento

Richiedi informazioni

Clicca su Leggi per aprire l'informativa
* Questi campi sono obbligatori

Calcola il tuo mutuo

Semplice e senza impegno
Anticipo

( % )
Mutuo

( % )

pochi semplici passi

inserisci i tuoi dati
Questionario completato
Grazie per aver richiesto un appuntamento senza impegno con un nostro Consulente del Credito e Assicurativo.

Hai inserito correttamente tutti i dati necessari e a breve riceverai una e-mail con un link da convalidare per inviare i tuoi dati.
Affiliato
Tecno Marmirolo Srl
Via Gramsci, 1/L 46047 Porto Mantovano (MN)

Il nostro staff


  • Oscar Zini
    Affiliato

  • Tania Caccia
    Coordinatrice

  • Giada Martignoni
    Collaboratrice

  • Francesco Tolucci
    Collaboratore

  • Nicole Zorzella
    Collaboratrice
Via Gramsci, 1/L 46047 Porto Mantovano (MN)
Zona: Porto Mantovano
Mostra su mappa
Orari: LUNEDI' - VENERDI' dalle 09.00 alle 13.00 e dalle 14.30 alle 19.30; SABATO dalle 09.00 alle 15.00. DOMENICA su appuntamento.
Affiliato
Tecno Marmirolo Srl
Via Gramsci, 1/L 46047 Porto Mantovano (MN)

2026 Tecnocasa Franchising S.p.A. - P. IVA 08365160152 - Via Monte Bianco 60/A 20089 Rozzano (MI). Ogni agenzia ha un proprio titolare ed è autonoma. Privacy policy | Policy utilizzo | Cookie policy