Porzione di trifamiliare in vendita

Porto Mantovano, Via Gramsci
€ 318.000
4 locali 4 locali
150 Mq 150 Mq
2 bagni 2 bagni

Porzione di trifamiliare in vendita

Porto Mantovano, Via Gramsci

Descrizione annuncio

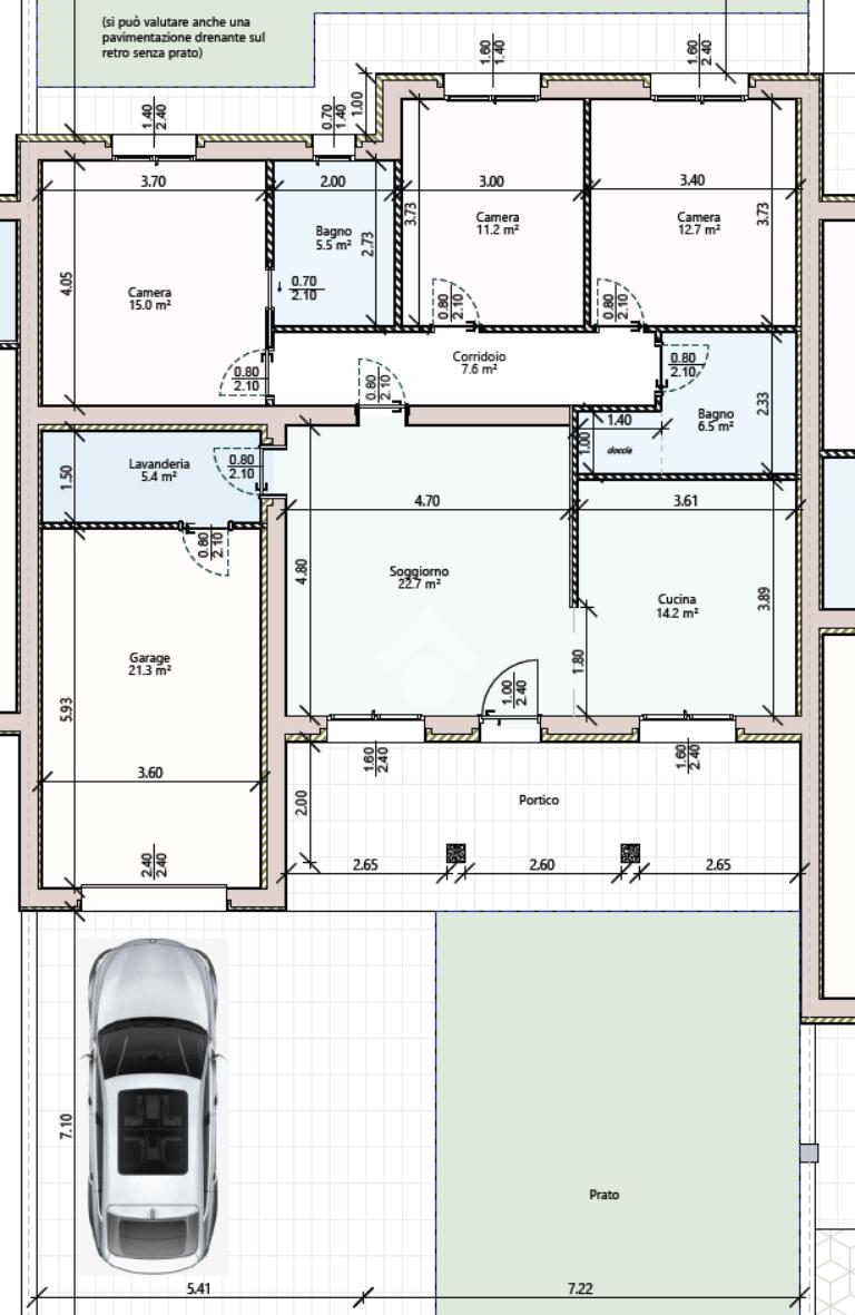
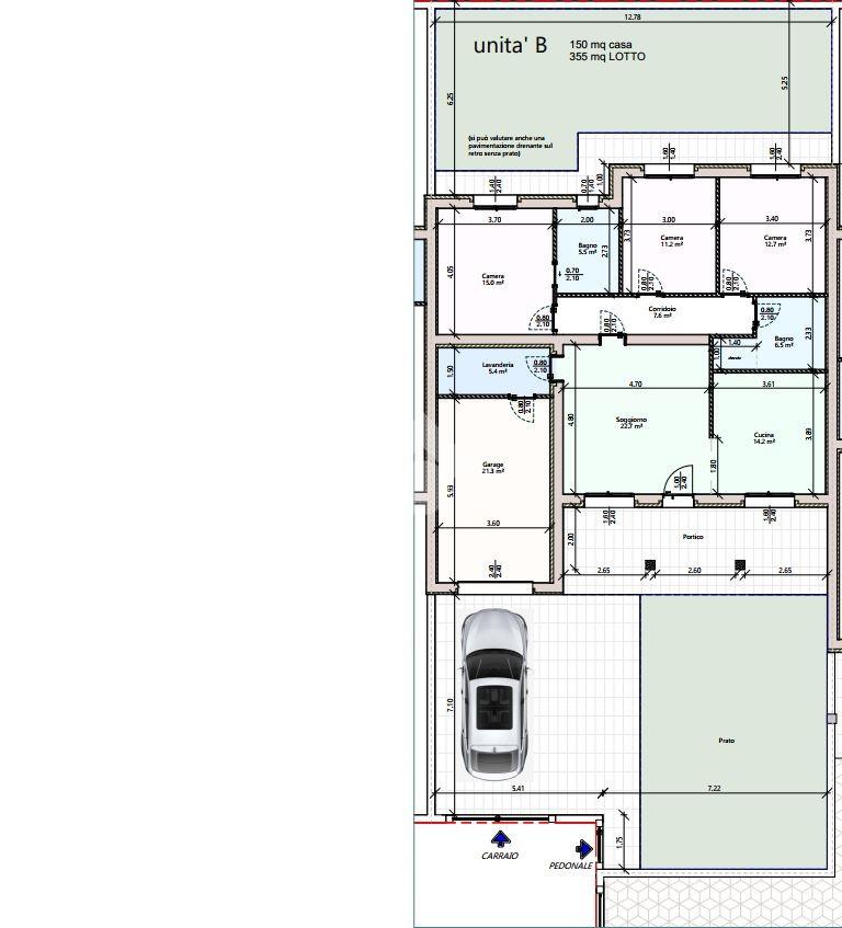
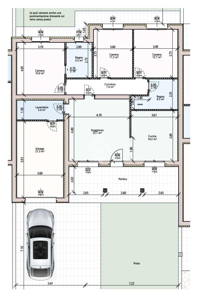
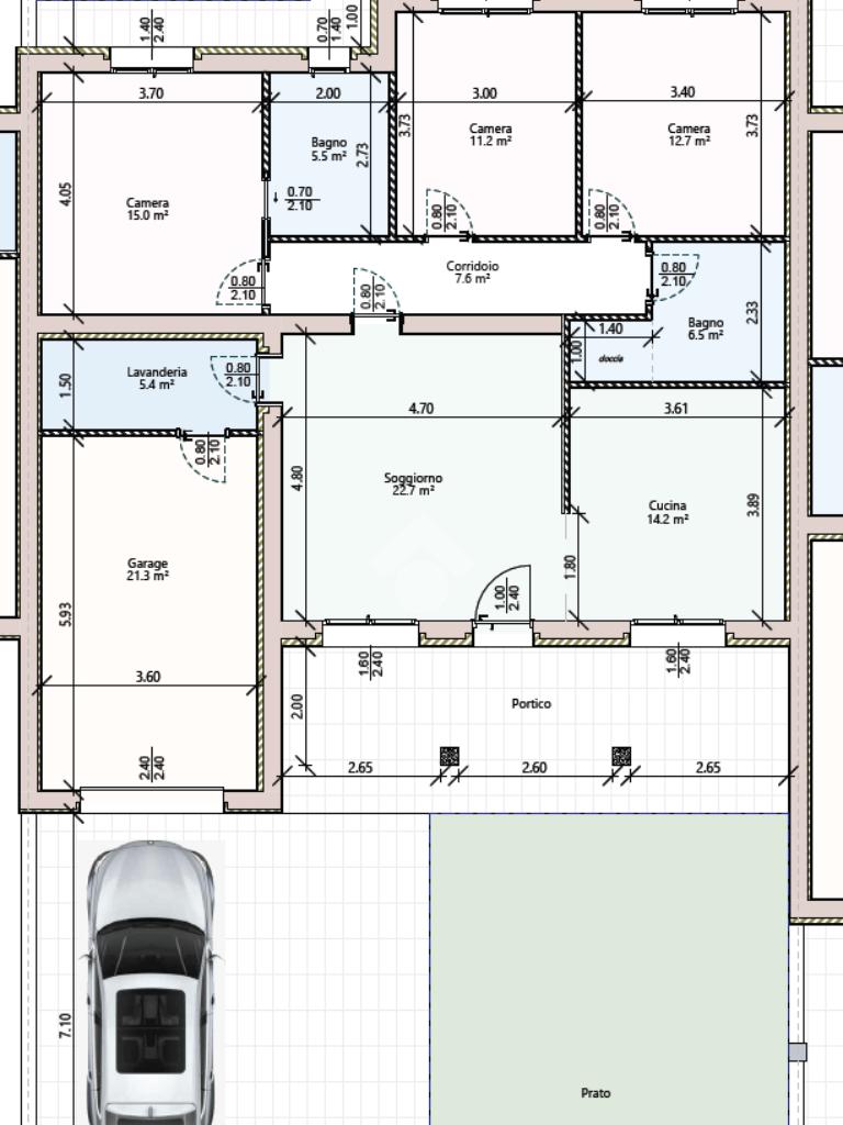
PORTO MANTOVANO - In zona residenziale tranquilla e comoda a tutti i servizi, su lotto di circa 355 mq, proponiamo in vendita porzione di trifamiliare centrale di nuova costruzione in Classe Energetica A4, interamente sviluppata al piano terra, con tre camere da letto e con possibilità di personalizzare le finiture.

La villa offre una zona giorno in open space che si affaccia su un ampio portico con giardino privato, sul fronte e sul retro, ideale per chi cerca spazi esterni da vivere. La soluzione comprende tre camere da letto, perfette per famiglie o per chi necessita di uno studio o una stanza per gli ospiti. Sono presenti due bagni moderni ed un comodo garage direttamente collegato all'abitazione.

La villa, da capitolato, è dotata di riscaldamento a pavimento con pompa di calore, tapparelle elettriche e cappotto esterno, garantendo un elevato comfort termico. L'impianto fotovoltaico contribuisce all'efficienza energetica, riducendo i costi di gestione.

Questa proprietà rappresenta un'opportunità per chi desidera una casa moderna e funzionale, in una zona tranquilla e ben servita. Inoltre, vi è la possibilità di personalizzazione di pavimenti e rivestimenti della villa.

Per ricevere informazioni e per visionare questa soluzione, contattaci ai nostri recapiti telefonici:
0376 390732 – 366 8700548

Servizi per chi vende:
- VALUTAZIONE GRATUITA dell'immobile
- Recuperare atto di provenienza
- Visure ipotecarie
- Visura catastale
- Pubblicità dell'immobile
- Rapidità nei tempi di vendita
- Assistenza fino all’atto notarile
- Appuntamenti vendita con clienti qualificati

Servizi per chi acquista:
- Consulenza mutuo gratuita e senza impegno
- Controllo documentale dell'immobile
- Assistenza fino all’atto

Vuoi affittare il tuo immobile? Ampia banca dati con clienti referenziati.

Veniteci a trovare in agenzia, siamo a Porto Mantovano (MN) in Via Antonio Gramsci 1/L, ed il nostro personale vi aiuterà a trovare l'immobile giusto per le vostre esigenze.

Ogni agenzia ha un proprio titolare ed è autonoma - Le presenti informazioni non costituiscono elemento contrattuale e potrebbero, in buona fede, contenere errori o omissioni.

Mostra tutto

Nelle vicinanze

Trasporto pubblico Trasporto pubblico
Sant’Antonio Mantovano
Sant’Antonio Mantovano
710 m
Monteverdi 2
Monteverdi 2
190 m
Gramsci
Gramsci
210 m
Ricariche auto elettriche Ricariche auto elettriche
Evway Porto Mantovano Resistenza
900 m
Scuole Scuole
Scuole Medie Monteverdi
170 m
Scuole
210 m
Farmacia Farmacia
Gamba
100 m
Farmacia
990 m
Farmacia San Raffaele
2,2 Km
Supermercati Supermercati
Conad
180 m
Albero
510 m
Lidl
1,1 Km
Famila
2,0 Km
Martinelli
2,5 Km
Bar Bar
Bar Camatti
450 m
Mascara
2,0 Km
Ristoranti Ristoranti
Sakura
380 m
Ristorante Fuku
560 m
Piedigrotta
680 m
La Rasdora
1,3 Km
Ristoranti
1,5 Km
Mostra tutto

Caratteristiche

Rif.:
61125350
Piano:
Terra con giardino di 1
Totale piani:
1
Box:
1
Posti auto:
1
Camere da letto:
3
Mostra tutto
Prezzo Prezzo
€ 318.000
Rata mutuo Rata mutuo
€ 1.507 / mese
Spese annue Spese annue
€ 0
Proponi il tuo prezzoProponi il tuo prezzo

Classe Energetica

A4
A4
A4
A4
A4
A4
A4
A4
A4
EP invernale del fabbricato:
EP estiva del fabbricato:
Anno di costruzione:
2026
Riscaldamento:
Autonomo
Tipo impianto:
A pavimento
Tipo alimentazione:
Pannelli

Ti interessa visionare l'immobile?

Fissa un appuntamento  Fissa un appuntamento

Richiedi informazioni

Clicca su Leggi per aprire l'informativa
* Questi campi sono obbligatori

Calcola il tuo mutuo

Semplice e senza impegno
Anticipo

( % )
Mutuo

( % )

pochi semplici passi

inserisci i tuoi dati
Questionario completato
Grazie per aver richiesto un appuntamento senza impegno con un nostro Consulente del Credito e Assicurativo.

Hai inserito correttamente tutti i dati necessari e a breve riceverai una e-mail con un link da convalidare per inviare i tuoi dati.
Affiliato
Tecno Marmirolo Srl
Via Gramsci, 1/L 46047 Porto Mantovano (MN)

Il nostro staff


  • Oscar Zini
    Affiliato

  • Tania Caccia
    Coordinatrice

  • Giada Martignoni
    Collaboratrice

  • Francesco Tolucci
    Collaboratore

  • Nicole Zorzella
    Collaboratrice
Via Gramsci, 1/L 46047 Porto Mantovano (MN)
Zona: Porto Mantovano
Mostra su mappa
Orari: LUNEDI' - VENERDI' dalle 09.00 alle 13.00 e dalle 14.30 alle 19.30; SABATO dalle 09.00 alle 15.00. DOMENICA su appuntamento.
Affiliato
Tecno Marmirolo Srl
Via Gramsci, 1/L 46047 Porto Mantovano (MN)

2026 Tecnocasa Franchising S.p.A. - P. IVA 08365160152 - Via Monte Bianco 60/A 20089 Rozzano (MI). Ogni agenzia ha un proprio titolare ed è autonoma. Privacy policy | Policy utilizzo | Cookie policy